Хит
								Артикул:
								TU-4000
							
						
							Электрогидравлический подъемник с верхней связью TU-4000R (ТЕМП)
 
Автомобильный двухстоечный электрогидравлический подъемник с верхней связью TU-4000R грузоподъемностью 4 тонны, (ручка съем со стопоров на одной колонне) предназначен для слесарных работ в автомастерских, для обслуживания легковых автомобилей с низким подхватом. 220/380В
 
Автомобильный подъемник TU-4000 - заинтересует тех, кому нравиться ровный пол между стойками (отсутствует поперечная перекладина, синхронизация тросовая, через верх).
 
Автомобильный двухстоечный подъемник TU4000R с верхней связью – тросовая синхронизация через верх. Снятие со стопоров с одной стороны, на управляющей колонне. Предназначен для обслуживания легковых автомобилей. Один из самых доступных по цене в линейке подъемников ТЕМП.
 
Преимущества:
- Колонны выполнены из металла толщиной 4,75 мм, покрыты качественной полимерной краской.
- Оснащен каретками нового образца.
- Надежная фиксация лап подъемника производится много-зубчатыми секторами безопасности.
- Винтовые регулируемые опоры.
- Бачок гидравлической станции выполнен из металла.
- Замки системы стопоров на каретках, выполнены по европей-скому типу и обеспечивают максимальную надежность и долговечность.
 
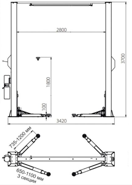
Технические данные TU4000R
 
 
Мин. высота подхвата, мм 100
Мак. высота подъем, мм 1800
Габаритная высота, мм 3700
Габаритная ширина, мм 3455
Расстояние между стойками, мм 2800
Вылет (длина) лапы, мм 650-1100
Синхронизация, верхняя
Время подъема/ время опускания, мм 45-65
Мощность двигателя, кВт 2.2
Напряжение, В 380/220V
Рабочая температура, С + 5-40 C°
Гарантия, мес. 12/24 *
 
* Расширенная гарантия 24 мес. на подъемники модели TD4500 и TU4000 предоставляется при соблюдении потребителем следующих условий:
• Монтаж и ввод в эксплуатацию подъемников осуществлен сервисной службой продавца с обязательным наличием акта ввода в эксплуатацию.
• Своевременное проведение Технического Обслуживания подъемников сервисной службой продавца, с отметкой об этом в гарантийном талоне.
• Прохождения ТО-1 через 6 месяцев эксплуатации, ТО-2 через 12 месяцев эксплуатации, ТО-3 через 18 месяцев и ТО-4 через 24 месяца эксплуатации.
																																																						
																				Автомобильный двухстоечный электрогидравлический подъемник с верхней связью TU-4000R грузоподъемностью 4 тонны, (ручка съем со стопоров на одной колонне) предназначен для слесарных работ в автомастерских, для обслуживания легковых автомобилей с низким подхватом. 220/380В
Автомобильный подъемник TU-4000 - заинтересует тех, кому нравиться ровный пол между стойками (отсутствует поперечная перекладина, синхронизация тросовая, через верх).
Автомобильный двухстоечный подъемник TU4000R с верхней связью – тросовая синхронизация через верх. Снятие со стопоров с одной стороны, на управляющей колонне. Предназначен для обслуживания легковых автомобилей. Один из самых доступных по цене в линейке подъемников ТЕМП.
Преимущества:
- Колонны выполнены из металла толщиной 4,75 мм, покрыты качественной полимерной краской.
- Оснащен каретками нового образца.
- Надежная фиксация лап подъемника производится много-зубчатыми секторами безопасности.
- Винтовые регулируемые опоры.
- Бачок гидравлической станции выполнен из металла.
- Замки системы стопоров на каретках, выполнены по европей-скому типу и обеспечивают максимальную надежность и долговечность.
Технические данные TU4000R

Технические характеристики TU4000R
Грузоподъемность, кг 4000Мин. высота подхвата, мм 100
Мак. высота подъем, мм 1800
Габаритная высота, мм 3700
Габаритная ширина, мм 3455
Расстояние между стойками, мм 2800
Вылет (длина) лапы, мм 650-1100
Синхронизация, верхняя
Время подъема/ время опускания, мм 45-65
Мощность двигателя, кВт 2.2
Напряжение, В 380/220V
Рабочая температура, С + 5-40 C°
Гарантия, мес. 12/24 *
* Расширенная гарантия 24 мес. на подъемники модели TD4500 и TU4000 предоставляется при соблюдении потребителем следующих условий:
• Монтаж и ввод в эксплуатацию подъемников осуществлен сервисной службой продавца с обязательным наличием акта ввода в эксплуатацию.
• Своевременное проведение Технического Обслуживания подъемников сервисной службой продавца, с отметкой об этом в гарантийном талоне.
• Прохождения ТО-1 через 6 месяцев эксплуатации, ТО-2 через 12 месяцев эксплуатации, ТО-3 через 18 месяцев и ТО-4 через 24 месяца эксплуатации.
| 
										 
											Страна производства
																					 
									 | 
									Китай | 
| 
										 
											Бренд
																					 
									 | 
									ТЕМП (Китай) | 
| 
										 
											Масса
																					 
									 | 
									610 | 
| 
										 
											Мощность, кВт
																					 
									 | 
									2,2 | 
| 
										 
											Синхронизация
																					 
									 | 
									верхняя | 
| 
										 
											Тип подъемника
																					 
									 | 
									стационарный | 
| 
										 
											Выс.подъем.для подъемников
																					 
									 | 
									1900 | 
| 
										 
											Мин.подх.для подъемников
																					 
									 | 
									100 | 
| 
										 
											Грузоподъемность подъемника
																					 
									 | 
									4000 | 
| 
										 
											Вид подъемника
																					 
									 | 
									легковой | 
| 
										 
											Тип привода подъемника
																					 
									 | 
									электрогидравлический | 
| 
										 
											Напряжение питания
																					 
									 | 
									220/380 | 
| 
										 
											Цвет
																					 
									 | 
									синий | 
| 
										 
											Разблокировка подъемника
																					 
									 | 
									ручка-съем | 
													Отзывы													
														
													
												
												
														Оставить отзыв													
												Загрузка отзывов...
	 Вы можете воспользоваться одним из следующих вариантов оплаты:
- Оплата наличными. Мы принимаем наличные деньги (только рубли) через кассовый фискальный аппарат.
 - Безналичный расчет для юридических и частных лиц.
 - Оплата банковской картой. Оплата происходит через ПАО СБЕРБАНК с использованием Банковских карт следующих платежных систем: VISA, VISA Electron, Maestro, MasterCard, МИР
 
	 Товар можно получить одним из следующих способов:
- Самовывоз товара с пункта выдачи по адресу в вашем городе.
 - Курьерская доставка с 9-00 до 23-00 по рабочим дням. Покупатель обязуется разгрузить оборудование собственными силами и в кратчайшие сроки. Простой автомобиля оплачивается отдельно.
 - Доставка одной из следующих транспортных компаний: "ПЭК" (Первая Экспедиционная Компания), "ЖДЭ" (ЖелДорЭкспедиция), "ЭНЕРГИЯ", "ДЕЛОВЫЕ ЛИНИИ", "СДЭК" и другие.
 

